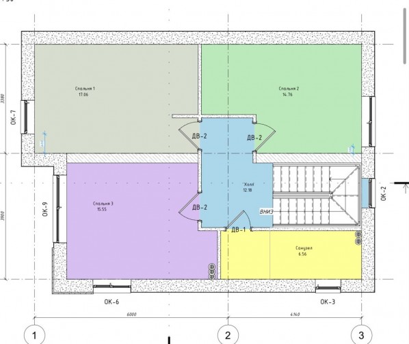
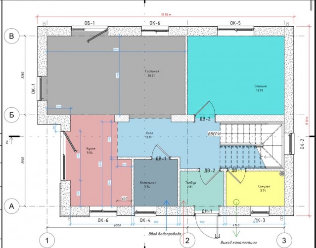
Представляем вашему вниманию современный двухэтажный дом, созданный из прочных и экологичных материалов. Этот просторный коттедж с четырьмя уютными спальнями и большой кухней-гостиной станет идеальным местом, где каждый найдет свое место для отдыха и вдохновения.
Продуманная планировка обеспечивает гармоничное сочетание функциональности и комфорта: просторная кухня-гостиная — сердце дома, идеально подходящая для семейных ужинов и встреч с друзьями, а четыре светлых спальни предоставляют личное пространство для каждого члена семьи. Надежные материалы гарантируют долговечность, отличную теплоизоляцию и минимальные затраты на содержание.
Этот дом — ваш шанс обрести уютное и современное жилье, которое прослужит многие годы.
Свяжитесь с нами сегодня и сделайте шаг к дому мечты — комфортному, надежному и стильному!
Выбор местоположения
Мы свяжемся с Вами в течение дня.