Прекрасный дом в Скандинавском стиле площадью 149м2. Этот дом является истинным фаворитом наших клиентов. Оригинальная форма крыши зонирует дом на 2 части – с высоким потолком зона отдыха в кухне-гостиной, с низким – спальный блок.
Общая площадь дома 149м2
Теплый контур 106м2
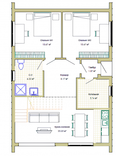
Кухня-гостиная – 1
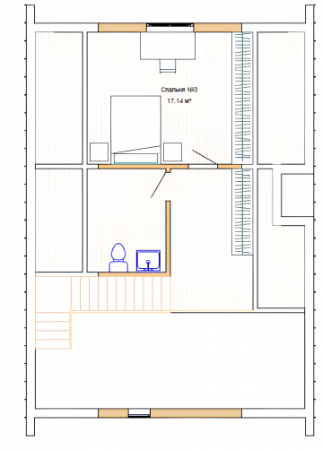
Спальня – 3
Гардеробная – 1
С/узел – 2
Котельная – 1
В стандартную комплектацию входит:
-переливной септик на 6м3.
-все инженерные коммуникации, включая теплый пол
-идеально ровный пол (п/сухая стяжка)
-идеально ровные стены (гипсокартон),
-фасад и кровля КЛИК ФАЛЬЦ + планкен (скрытый крепеж)
-5-ти камерные окна VЕКА с хорошей фурнитурой и мультифункциональным покрытием.
Ждем ваши заявки! С удовольствием воплотим вашу мечту в жизнь!
Выбор местоположения
Мы свяжемся с Вами в течение дня.